|
Admin
  
- UID
- 14162
- Posts
- 428
- Digest
- 0
- Credits
- 0
- NickName
-
- Online
- 1228 hours
- Registered
- 23/12/2010
- Last login
- 8/10/2025
|
1#
A A
A Post at 24/07/2015 12:24 Show author
反對南生圍發展, 今天截止!!! Object to NSW development today!
南生圍發展項目(A/YL-NSW/242)的公眾諮詢將於今天〔7月24日〕截止,希望大家踴躍向城規會表達意見(電郵: tpbpd@pland.gov.hk),保護南生圍!
The deadline of the public consultation for the Nam Sang Wai development project is today (24 July), we hope that you can send your comments to the Town Planning Board (email: tpbpd@pland.gov.hk) to protect Nam Sang Wai!
文件摘要Gist of the application: http://www.info.gov.hk/tpb/tc/plan_application/Attachment/20150703/s16_A_YL-NSW_242_0_gist.pdf
以下是本會對發展項目的關注重點:
Below are our major concerns for the proposed development:
- 南生圍有不同的濕地生境,包括蘆葦叢、濕草地、運作中及荒廢魚塘,為不同種類的水鳥提供棲息及覓食的地方。一些具保育價值而又依賴蘆葦叢生存的雀鳥品種均可以在南生圍發現,例如草鷺、黃葦鳽、大麻鳽、白腹鷂及中華攀雀等。另外, 南生圍曾錄得90隻全球瀕危的黑臉琵鷺在一個放乾水的魚塘內覓食。多樣化的濕地生境令南生圍成為具高生態價值的地點,發展項目根本不應選址於生態如此敏感的地方。
- 南生圍是本地普通鸕鷀重要的晚間棲地。香港觀鳥會於2014年12月,記錄到4,360隻普通鸕鷀於南生圍棲息,佔后海灣種群的一半。發展項目的高層住宅在晚間會造成光污染等環境影響,干擾周邊的生境以及普通鸕鷀的棲地。
- 發展商所指的「濕地無淨損失」只是考慮水體面積。此計算方法忽略了魚塘提岸的濕地生態功能。事實上,發展項目會導致10.4公頃的濕地淨損失,並不符合后海灣地區內「不會有濕地淨減少」的原則。
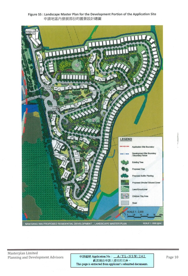
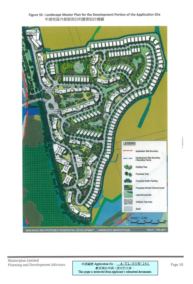
- 雖然新項目的地盤面積比上次的申請縮減七成,但總樓面面積依舊不變,高層住宅增反而加至29幢,每幢19至25層,令住宅單位數量大增六成,導致規劃人口由4,480增加至6,500,對南生圍的生態及天然景觀造成不可挽回的影響。
- 為了補償發展所帶來的蘆葦叢損失,發展商建議在南生圍北邊的魚塘內補種蘆葦,而進一步的魚塘損失會在甩洲補償相關水體面積。這些方法是不能有效補償濕地損失的。此外,南生圍的魚塘面積減少,有機會影響在南生圍有紀錄而又全球易危的歐亞水獺。
- 發展項目會於山貝河建一道行車天橋,連接南生圍及元朗工業邨,讓居民及市民進出南生圍。但如此重要的發展項目竟沒有納入在是次申請範圍之內,而發展商亦沒有詳細評估工程前後所產生的各種環境影響,包括對在山貝河覓食的水鳥的影響。
- 在南生圍的500米範圍內,還有幾個大型住宅、酒店及商場的發展申請,以及最近獲批准的豐樂圍發展項目。這些發展項目,包括是次南生圍的發展項目,會對后海灣的生態完整性造成累計影響。
- 《生物多樣性公約》已於2011年延伸到香港。根據公約精神,位於后海灣而有高生態價值的南生圍及甩洲應得到充分的保護及合適的管理。除了發展商提出的建議,政府亦應考慮其他替代方案,譬如將土地擁有者的發展權轉移到后海灣以外生態價值較低的地方,並成立基金管理南生圍及甩洲保育區。
- Nam Sang Wai has various wetland habitats, including reedbeds, wet grasslands, active and abandoned fishponds, providing roosting and foraging ground for a wide range of birds. Some reedbed associated birds of conservation concern were recorded in Nam Sang Wai, such as Purple Heron, Yellow Bittern, Eurasian Bittern, Eastern Marsh Harrier and Chinese Penduline Tit. In addition, 90 Globally Endangered Black-faced Spoonbills were recorded in a drained fishpond in Nam Sang Wai. Nam Sang Wai has a high ecological value due to its diverse wetland habitats and site of such ecological sensitivity should not be developed.
- Nam Sang Wai is an important night roosting site for Great Cormorant. HKBWS recorded 4,360 Great Cormorants roosting in Nam Sang Wai in Feb 2014, which account for half of the Deep Bay population. The proposed high-rise residential towers would cause light pollution to the surroundings, and adversely affecting the night roost of Great Cormorant.
- The “no-net-loss in wetland” suggested by the developers only considers the ‘water area’. This calculation method neglects the wetland ecological function of pond bunds. In fact, the proposed development would lead to a net loss of 10.4 ha of wetland, and is not in line with the principle of “no-net-loss in wetland” in the Deep Bay area.
- Although the development footprint has reduced by 70% when compared with the previous application, the gross floor area remains the same. Residential towers increased to 29 blocks, with 19 to 25 storeys high. The total number of residential units also increased by 60%, leading to a rise in planned population from 4,480 to 6,500, thus causing adverse impacts on the ecology and landscape of Nam Sang Wai.
- In order to compensate the loss of reedbed caused by the proposed development, the developer proposed to recreate reedbed in the fishponds at Nam Sang Wai; regarding the further loss in fishponds, the corresponding loss in ‘water area’ will be compensated in Lut Chau. These mitigation measures are considered as ineffective in compensating the wetland loss. Moreover, the reduction of fishpond area in Nam San Wai may have adverse impact on the Globally Vulnerable Eurasian Otter, which was recorded in Nam Sang Wai.
- A new bridge will be built across Shan Pui River, connecting Nam Sang Wai and the Yuen Long Industrial Estate for the convenience of residents and visitors to assess Nam Sang Wai. However, such an important component of the development is not included within the application site boundary. The ecological impacts of the proposed bridge during construction and operational phase were not adequately assessed, including the impacts on the waterbirds foraging in Shan Pui River.
- Within 500m boundary of Nam Sang Wai, there are also several planning applications for proposed large scale residential developments, hotels and shopping malls, including the recently approve Fung Lok Wai project. These developments, including the current application, would have adverse cumulative impact on the ecological integrity of the Deep Bay area.
- The Convention on Biological Diversity has extended to Hong Kong in 2011. Under the spirit of the Convention, Nam Sang Wai and Lut Chau, which are of high ecological and conservation value, should be well-protected and properly managed. Besides the proposals by developers, the Government should also consider that alternatives, such as transferring the development right of land owners to places of low ecological value outside the Deep Bay area, and establishing a trust for the management of Nam Sang Wai and Lut Chau.
香港觀鳥會 HKBWS
|